RESIDENCIAS CANAVERAL

Año: 2022
Área útil de construcción: 825.71 m2
Área total del terreno: 1150 m2
Tipo de proyecto: Residencial
Estado del Proyecto: Diseño

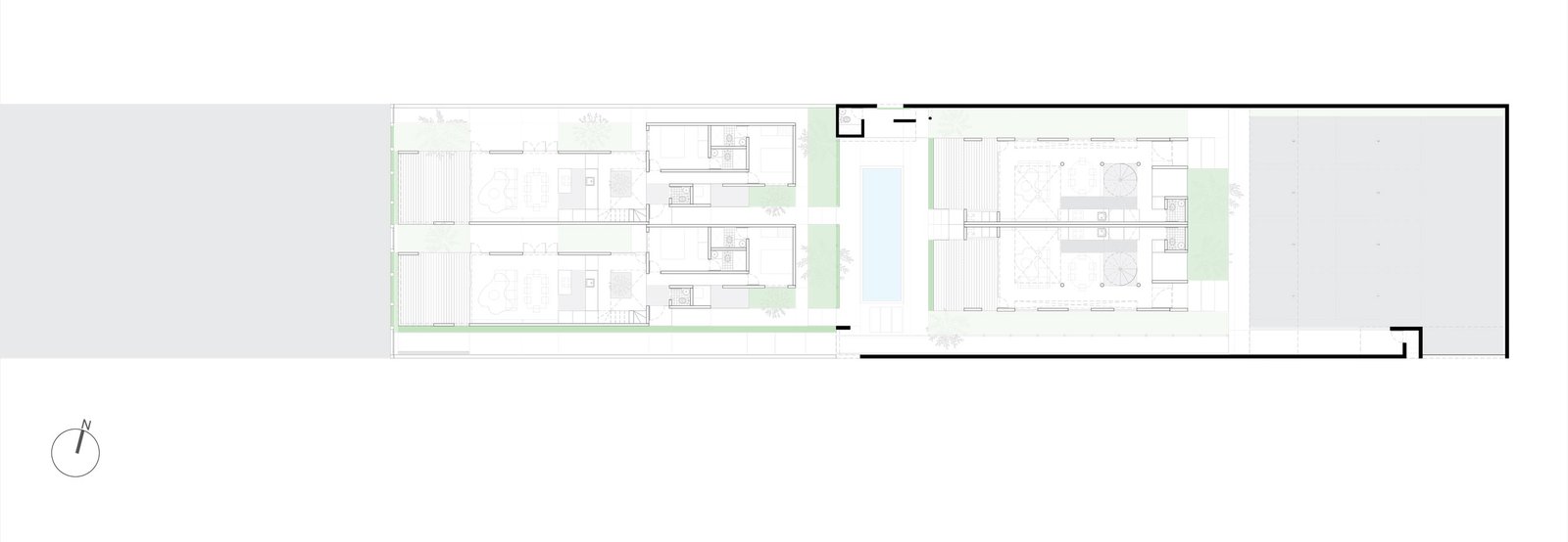
Este proyecto se plantea como un conjunto cerrado de viviendas multifamiliares. Nace de la exploración de la tipología Town Houses. La idea subyace en buscar la eficiencia y confort de unidades habitacionales aprovechando la verticalidad del terreno, y las cualidades paisajísticas del sitio en las que se encuentra implantado.

 El proyecto cuenta con cuatro unidades de vivienda, dos departamentos frontales distribuidos en dos niveles en los que se implementan patios y dobles alturas. Estos departamentos cuentan con amplias terrazas adyacente a la playa. En la parte posterior se ubican dos unidades de vivienda adosadas, distribuidas en tres plantas, con mayor amplitud en sus estancias, ubicadas en un zócalo el cual buscar darle vista a la playa a todas las plantas de la vivienda.

Estas viviendas se ubican adyacentes al área social del conjunto, cada vivienda cuenta con zona de BBQ independiente. El área social busca engranar todas las zonas del proyecto mediante sus líneas, y espacios se articulan y ordenan todas las circulaciones que se desarrollan en el sitio.

 

PROYECTO CANAVERAL

Año: 2022
Área útil de construcción: 825.71 m2
Área total del terreno: 1150 m2
Tipo de proyecto: Residencial
Estado del Proyecto: Diseño

Este proyecto se plantea como un conjunto cerrado de viviendas multifamiliares. Nace de la exploración de la tipología Town Houses. La idea subyace en buscar la eficiencia y confort de unidades habitacionales aprovechando la verticalidad del terreno, y las cualidades paisajísticas del sitio en las que se encuentra implantado. El proyecto cuenta con cuatro unidades de vivienda, dos departamentos frontales distribuidos en dos niveles en los que se implementan patios y dobles alturas. Estos departamentos cuentan con amplias terrazas adyacente a la playa. En la parte posterior se ubican dos unidades de vivienda adosadas, distribuidas en tres plantas, con mayor amplitud en sus estancias, ubicadas en un zócalo el cual buscar darle vista a la playa a todas las plantas de la vivienda. Estas viviendas se ubican adyacentes al área social del conjunto, cada vivienda cuenta con zona de BBQ independiente. El área social busca engranar todas las zonas del proyecto mediante sus líneas, y espacios se articulan y ordenan todas las circulaciones que se desarrollan en el sitio.